Building Poznań since 1991. facebook youtube
pl

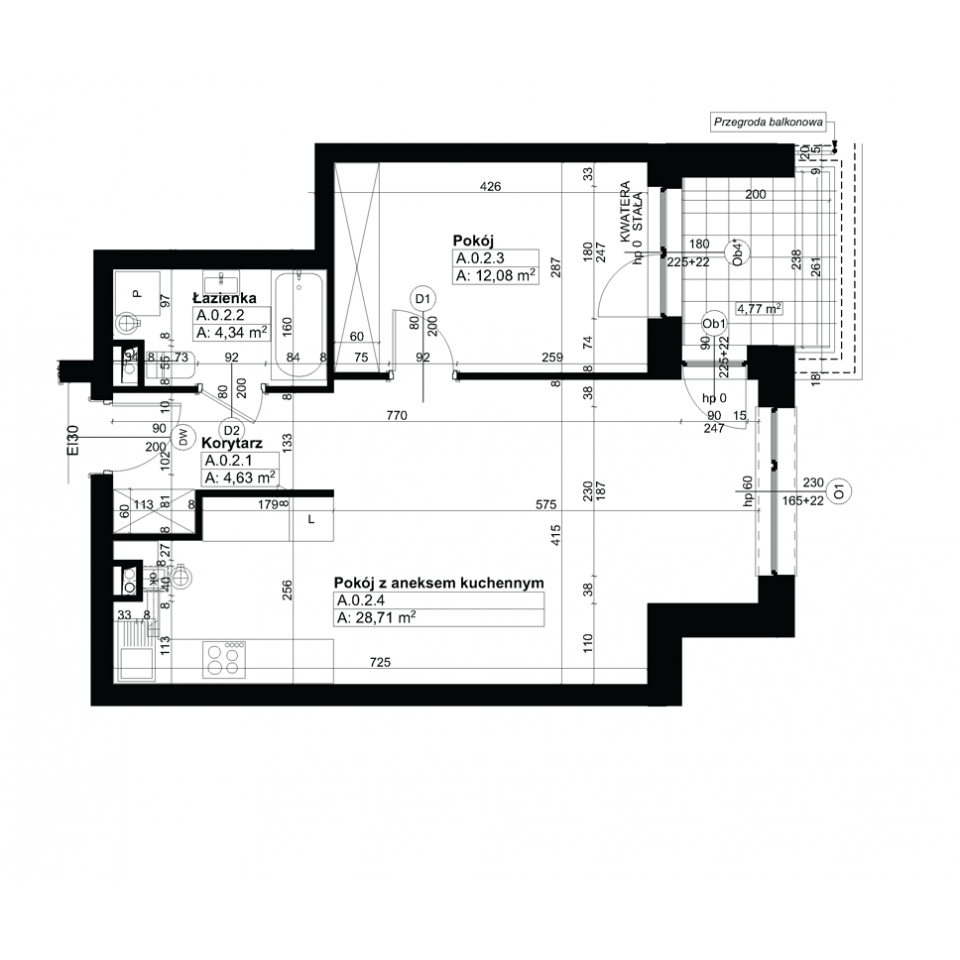
Świerzawska 13

Apartment A.0.2

572,240 PLN

11,500 PLN / m2
Floor:
Floor Ground floor
Rooms:
2
Area:
49.76 m2

Additional benefits for the developer i

or fill contact form. Fill a form e-mail: biuro@ataner.pl
Choose offers to add to clipboard