Building Poznań since 1991. facebook youtube
pl

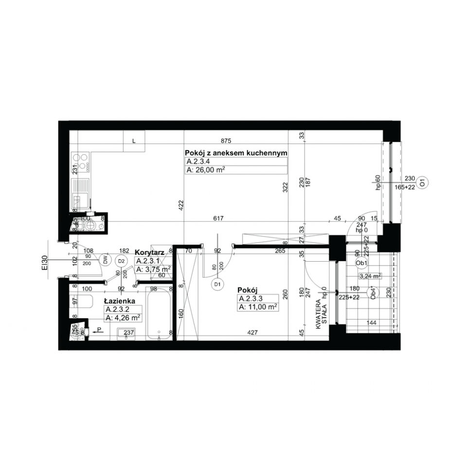
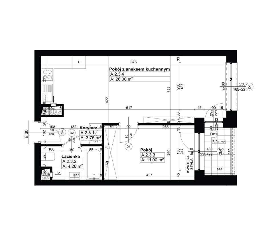
Świerzawska 13

Apartment A.2.3

598,633 PLN

13,300 PLN / m2
Floor:
Floor 2
Rooms:
2
Area:
45.01 m2

Additional benefits for the developer i

or fill contact form. Fill a form e-mail: biuro@ataner.pl
Choose offers to add to clipboard