Building Poznań since 1991. facebook youtube
pl

Świerzawska 13

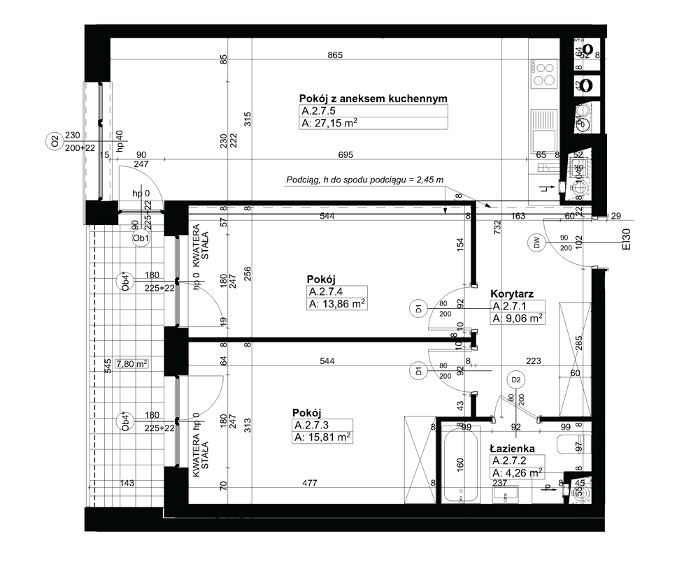
Apartment A.2.7

820,638 PLN

11,700 PLN / m2
Floor:
Floor 2
Rooms:
3
Area:
70.14 m2

Additional benefits for the developer i

or fill contact form. Fill a form e-mail: biuro@ataner.pl
Choose offers to add to clipboard