Building Poznań since 1991. facebook youtube
pl

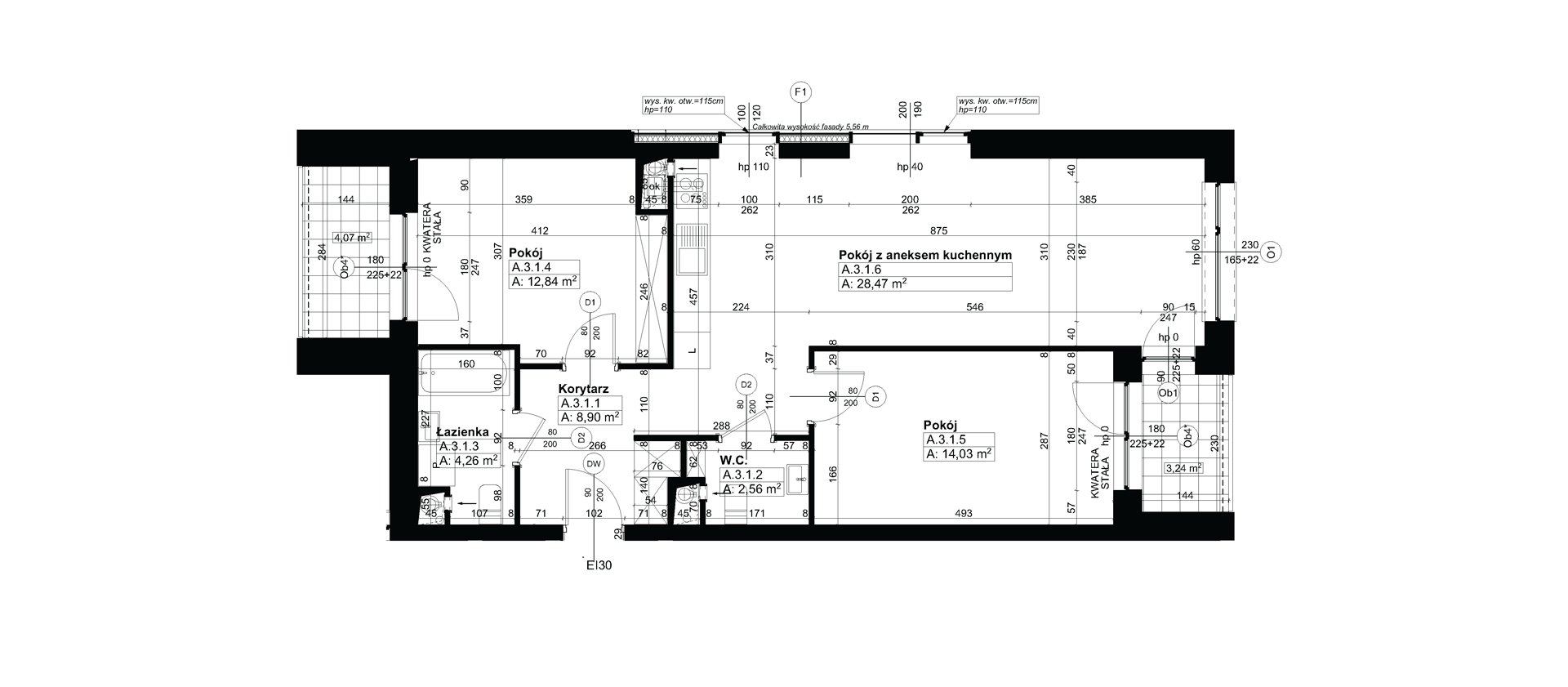
Świerzawska 13

Apartment A.3.1

895,356 PLN

12,600 PLN / m2
Floor:
Floor 3
Rooms:
3
Area:
71.06 m2

Additional benefits for the developer i

or fill contact form. Fill a form e-mail: biuro@ataner.pl
Choose offers to add to clipboard