Building Poznań since 1991. facebook youtube
pl

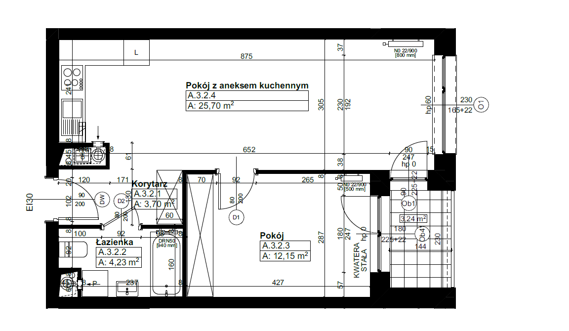
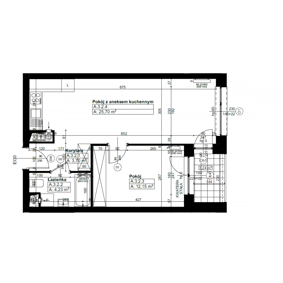
Świerzawska 13

Apartment A.3.2

618,030 PLN

13,500 PLN / m2
Floor:
Floor 3
Rooms:
2
Area:
45.78 m2

Additional benefits for the developer i

or fill contact form. Fill a form e-mail: biuro@ataner.pl
Choose offers to add to clipboard