Building Poznań since 1991. facebook youtube
pl

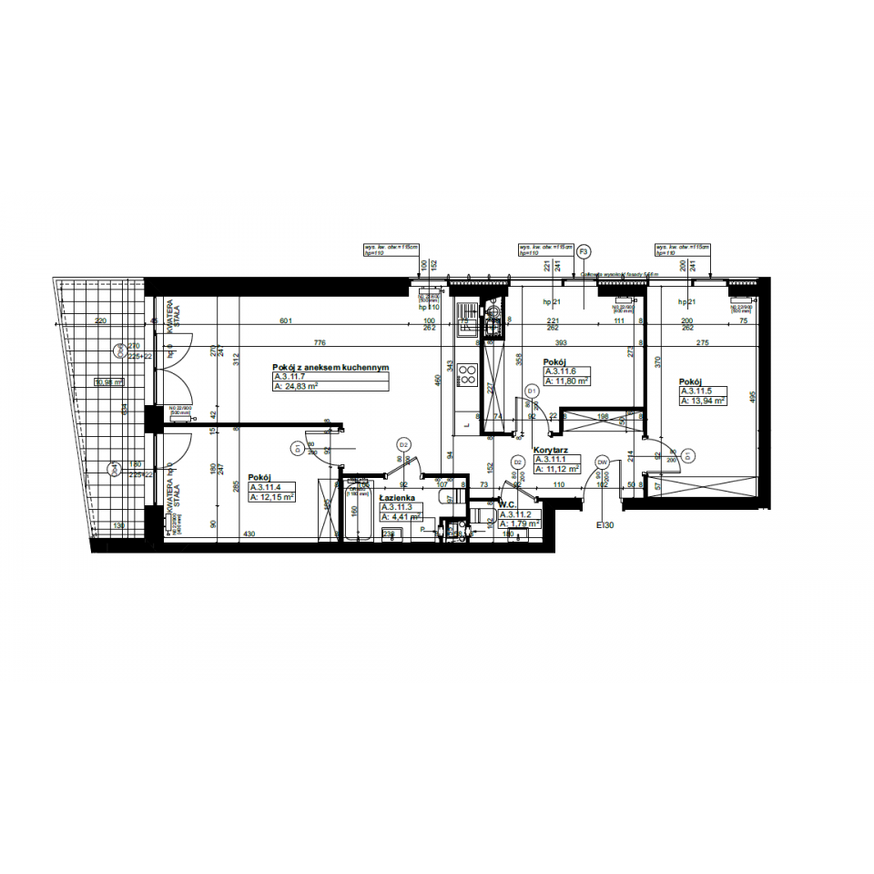
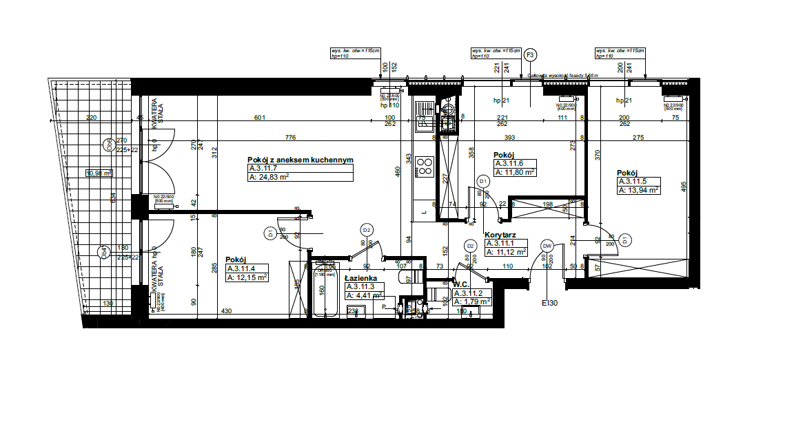
Świerzawska 13

Apartment A.3.11

1,032,516 PLN

12,900 PLN / m2
Floor:
Floor 3
Rooms:
4
Area:
80.04 m2

Additional benefits for the developer i

or fill contact form. Fill a form e-mail: biuro@ataner.pl
Choose offers to add to clipboard