Building Poznań since 1991. facebook youtube
pl

Świerzawska 13

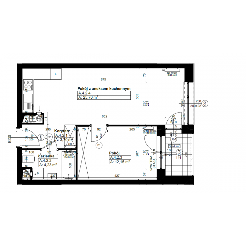
Apartment A.4.2

627,186 PLN

13,700 PLN / m2
Floor:
Floor 4
Rooms:
2
Area:
45.78 m2

Additional benefits for the developer i

or fill contact form. Fill a form e-mail: biuro@ataner.pl
Choose offers to add to clipboard