Building Poznań since 1991. facebook youtube
pl

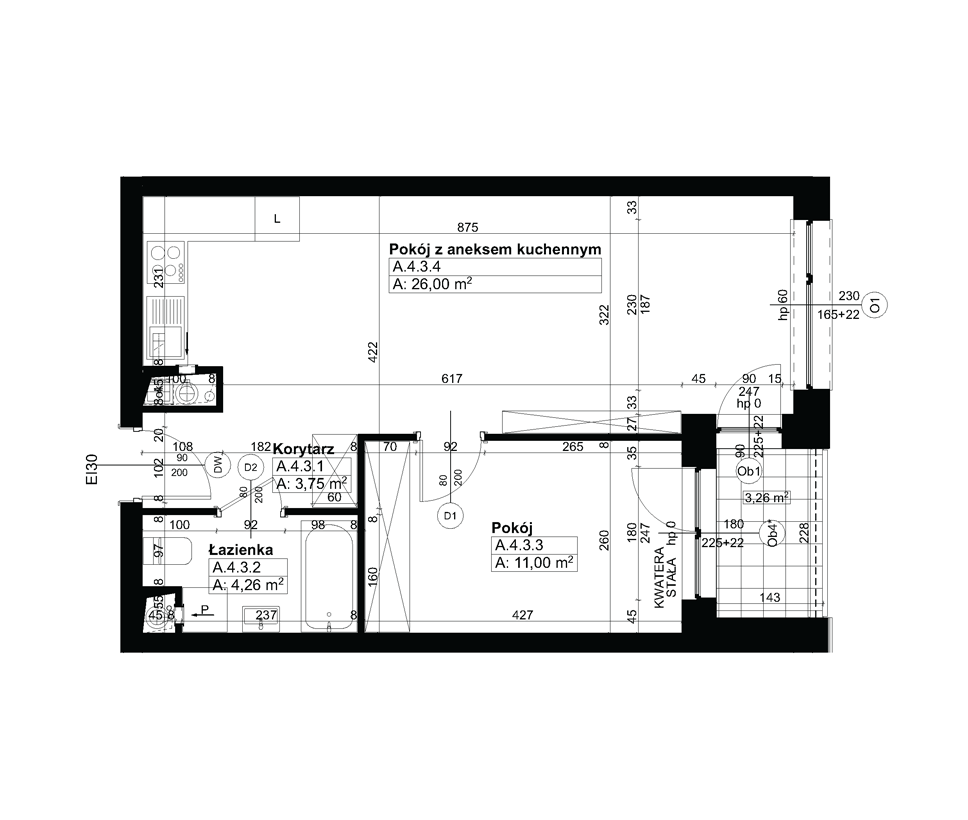
Świerzawska 13

Apartment A.4.3

612,136 PLN

13,600 PLN / m2
Floor:
Floor 4
Rooms:
2
Area:
45.01 m2

Additional benefits for the developer i

or fill contact form. Fill a form e-mail: biuro@ataner.pl
Choose offers to add to clipboard