Building Poznań since 1991. facebook youtube
pl

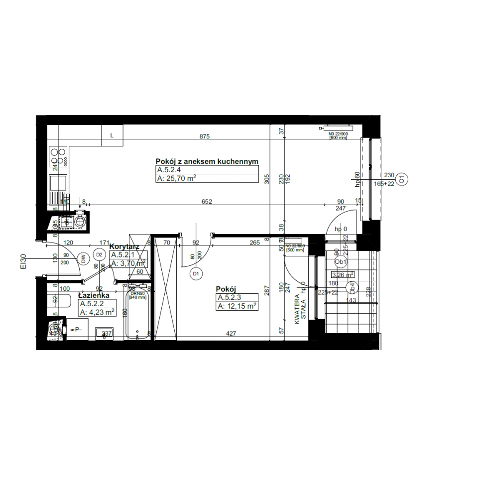
Świerzawska 13

Apartment A.5.2

636,342 PLN

13,900 PLN / m2
Floor:
Floor 5
Rooms:
2
Area:
45.78 m2

Additional benefits for the developer i

or fill contact form. Fill a form e-mail: biuro@ataner.pl
Choose offers to add to clipboard