Building Poznań since 1991. facebook youtube
pl

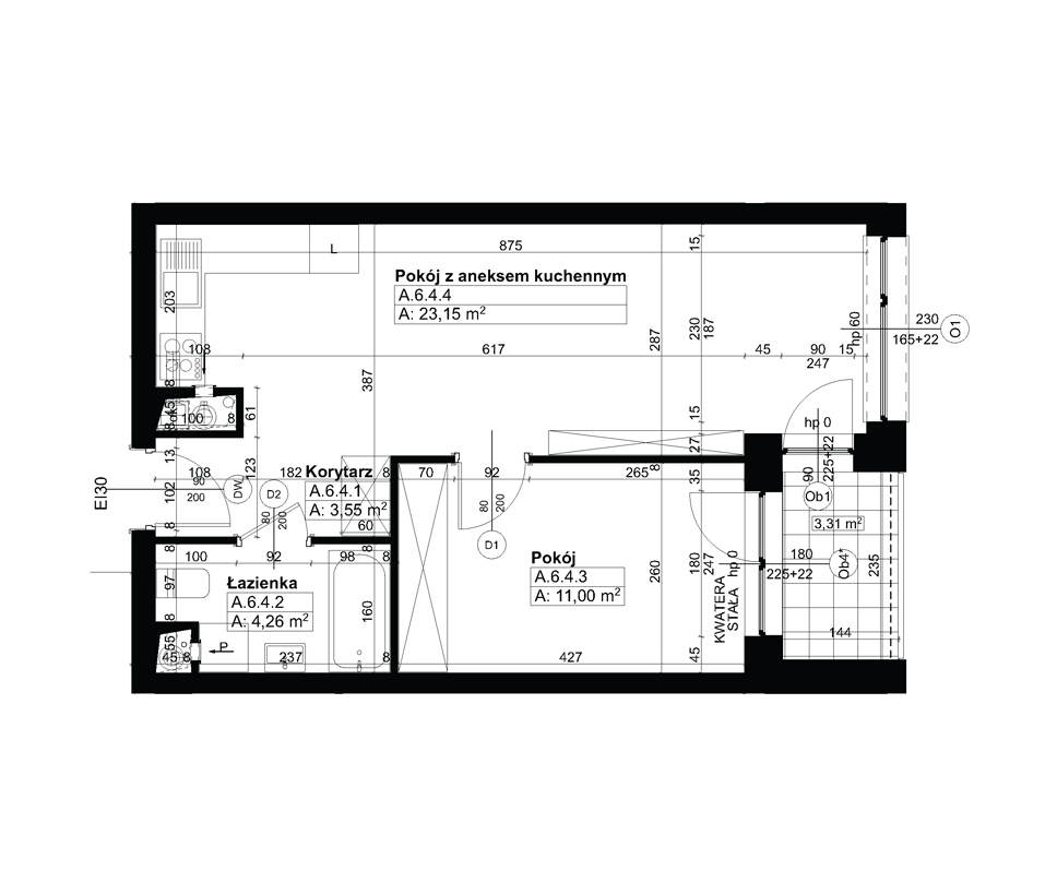
Świerzawska 13

Apartment A.6.4

591,636 PLN

14,100 PLN / m2
Floor:
Floor 6
Rooms:
2
Area:
41.96 m2

Additional benefits for the developer i

or fill contact form. Fill a form e-mail: biuro@ataner.pl
Choose offers to add to clipboard