Building Poznań since 1991. facebook youtube
pl

Świerzawska 13

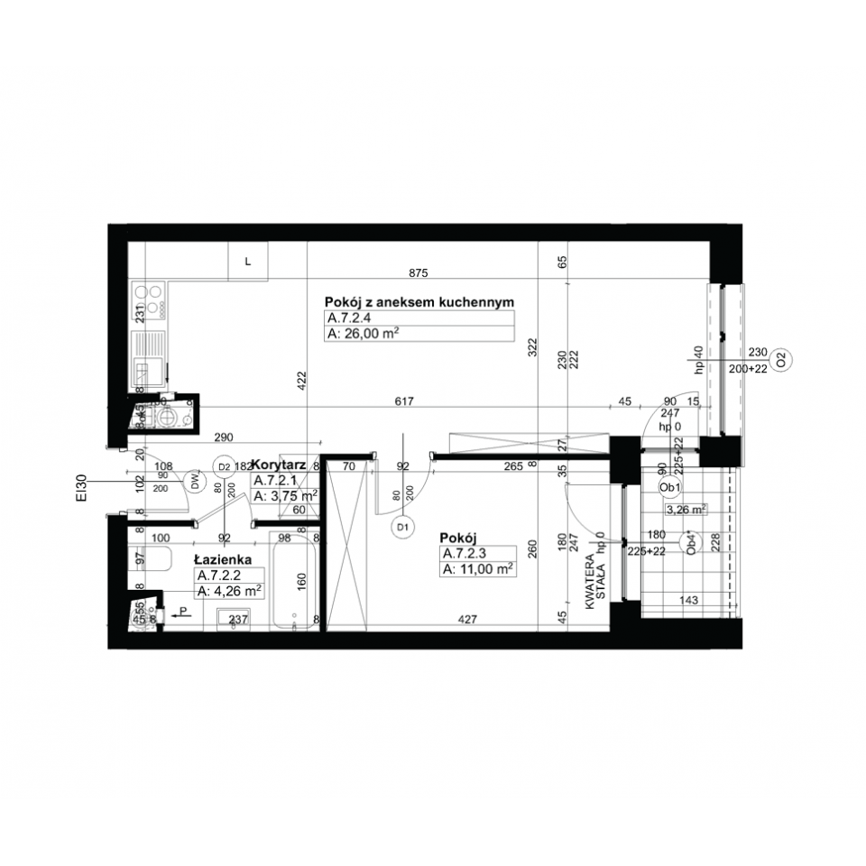
Apartment A.7.2

634,641 PLN

14,100 PLN / m2
Floor:
Floor 7
Rooms:
2
Area:
45.01 m2

Additional benefits for the developer i

or fill contact form. Fill a form e-mail: biuro@ataner.pl
Choose offers to add to clipboard