Building Poznań since 1991. facebook youtube
pl

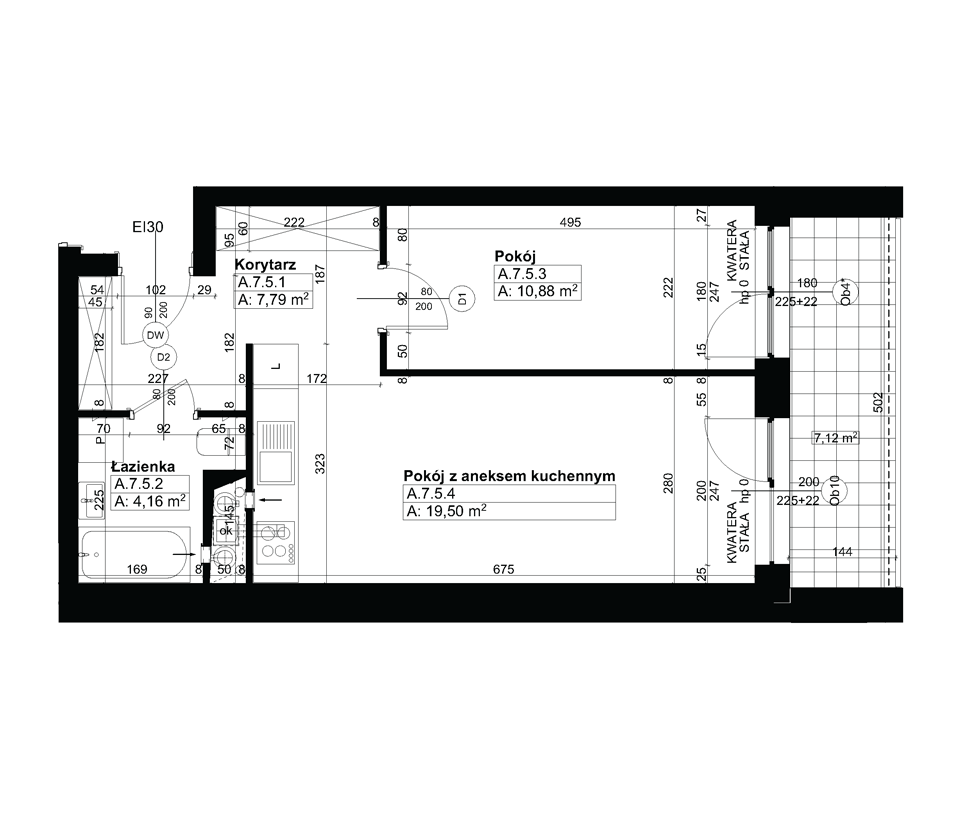
Świerzawska 13

Apartment A.7.5

626,484 PLN

14,800 PLN / m2
Floor:
Floor 7
Rooms:
2
Area:
42.33 m2

Additional benefits for the developer i

or fill contact form. Fill a form e-mail: biuro@ataner.pl
Choose offers to add to clipboard