Building Poznań since 1991. facebook youtube
pl

Świerzawska 13

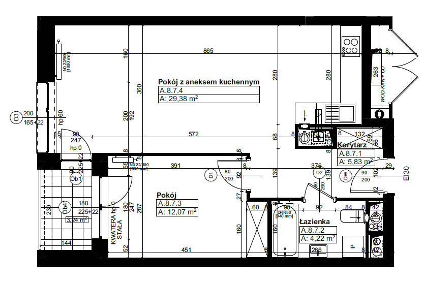
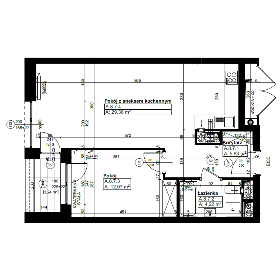
Apartment A.8.7

688,704 PLN

13,600 PLN / m2
Floor:
Floor 8
Rooms:
2
Area:
50.64 m2

Additional benefits for the developer i

or fill contact form. Fill a form e-mail: biuro@ataner.pl
Choose offers to add to clipboard