Building Poznań since 1991. facebook youtube
pl

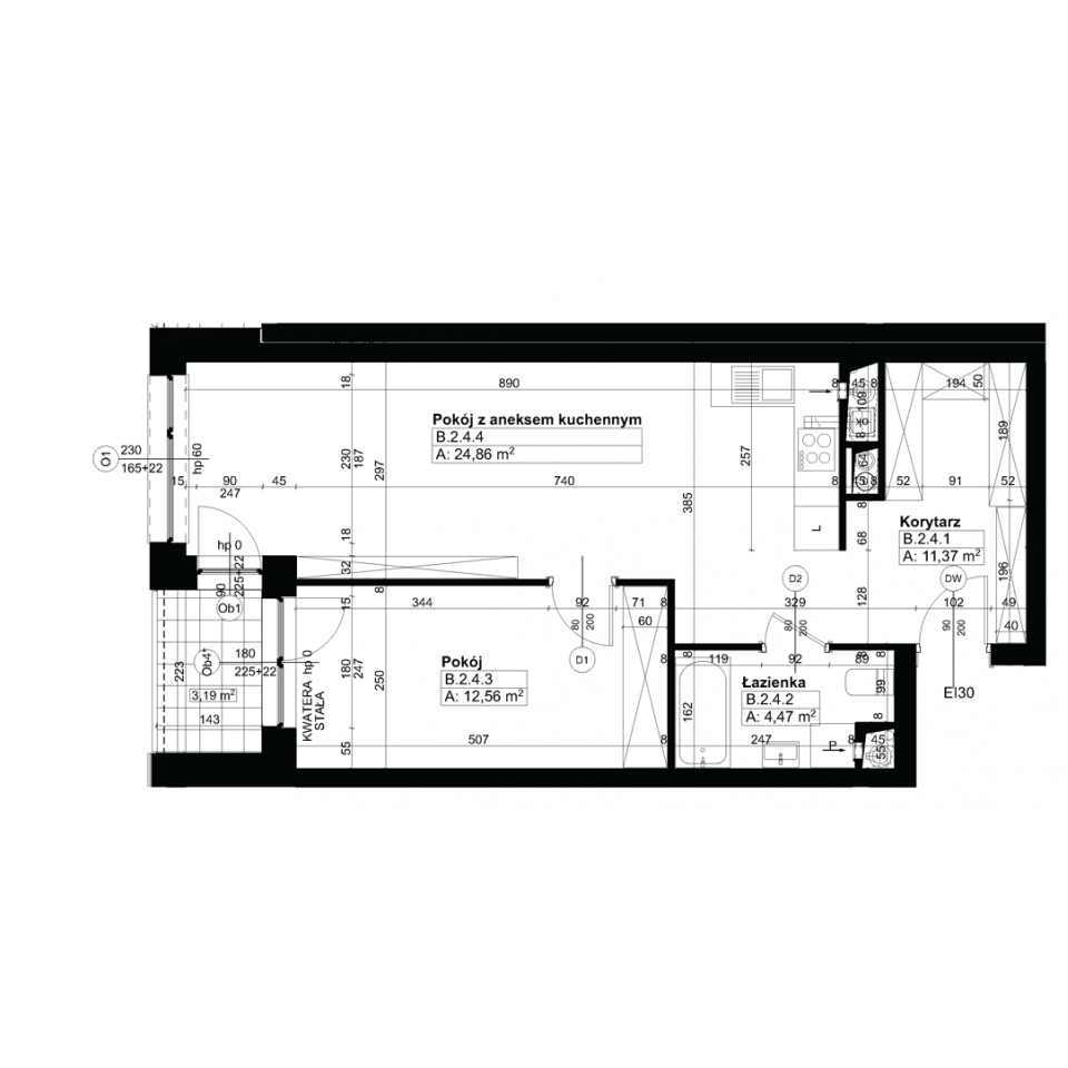
Świerzawska 13

Apartment B.2.4

649,772 PLN

12,200 PLN / m2
Floor:
Floor 2
Rooms:
2
Area:
53.26 m2

Additional benefits for the developer i

or fill contact form. Fill a form e-mail: biuro@ataner.pl
Choose offers to add to clipboard