Building Poznań since 1991. facebook youtube
pl

Świerzawska 13

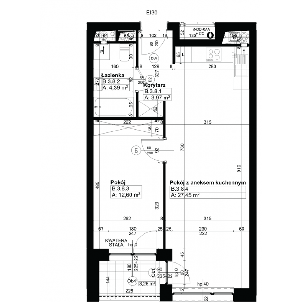
Apartment B.3.8

585,761 PLN

12,100 PLN / m2
Floor:
Floor 3
Rooms:
2
Area:
48.41 m2

Additional benefits for the developer i

or fill contact form. Fill a form e-mail: biuro@ataner.pl
Choose offers to add to clipboard