Building Poznań since 1991. facebook youtube
pl

Świerzawska 13

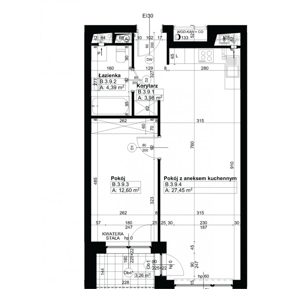
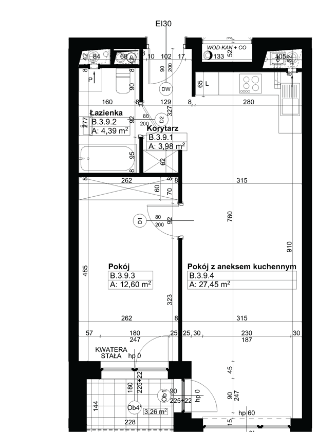
Apartment B.3.9

585,882 PLN

12,100 PLN / m2
Floor:
Floor 3
Rooms:
2
Area:
48.42 m2

Additional benefits for the developer i

or fill contact form. Fill a form e-mail: biuro@ataner.pl
Choose offers to add to clipboard