Building Poznań since 1991. facebook youtube
pl

Świerzawska 13

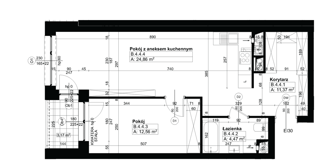
Apartment B.4.4

681,728 PLN

12,800 PLN / m2
Floor:
Floor 4
Rooms:
2
Area:
53.26 m2

Additional benefits for the developer i

or fill contact form. Fill a form e-mail: biuro@ataner.pl
Choose offers to add to clipboard