Building Poznań since 1991. facebook youtube
pl

Świerzawska 13

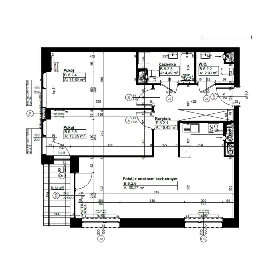
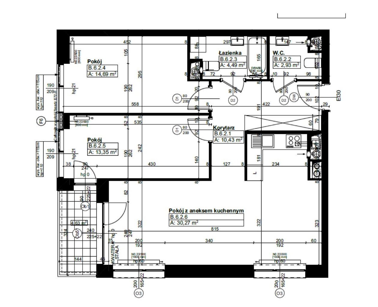
Apartment B.6.2

952,000 PLN

12,500 PLN / m2
Floor:
Floor 6
Rooms:
3
Area:
76.16 m2

Additional benefits for the developer i

or fill contact form. Fill a form e-mail: biuro@ataner.pl
Choose offers to add to clipboard