Building Poznań since 1991. facebook youtube
pl

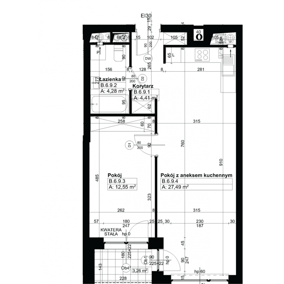
Świerzawska 13

Apartment B.6.9

604,252 PLN

12,400 PLN / m2
Floor:
Floor 6
Rooms:
2
Area:
48.73 m2

Additional benefits for the developer i

or fill contact form. Fill a form e-mail: biuro@ataner.pl
Choose offers to add to clipboard