Building Poznań since 1991. facebook youtube
pl

Świerzawska 13

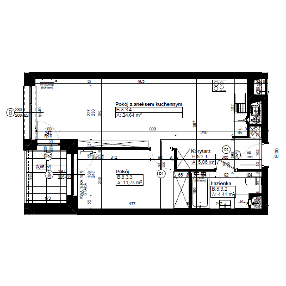
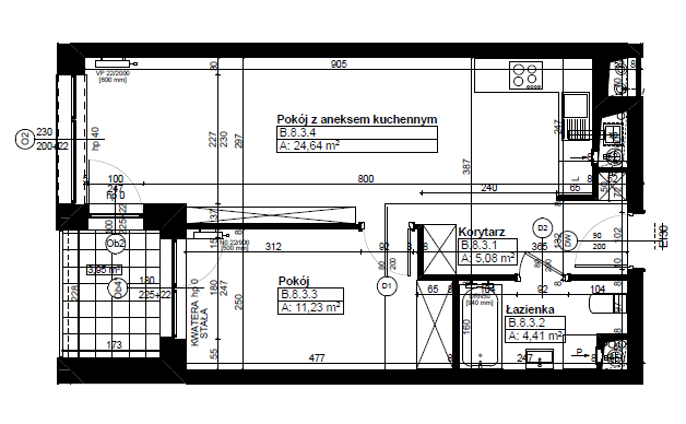
Apartment B.8.3

657,720 PLN

14,500 PLN / m2
Floor:
Floor 8
Rooms:
2
Area:
45.36 m2

Additional benefits for the developer i

or fill contact form. Fill a form e-mail: biuro@ataner.pl
Choose offers to add to clipboard