Building Poznań since 1991. facebook youtube
pl

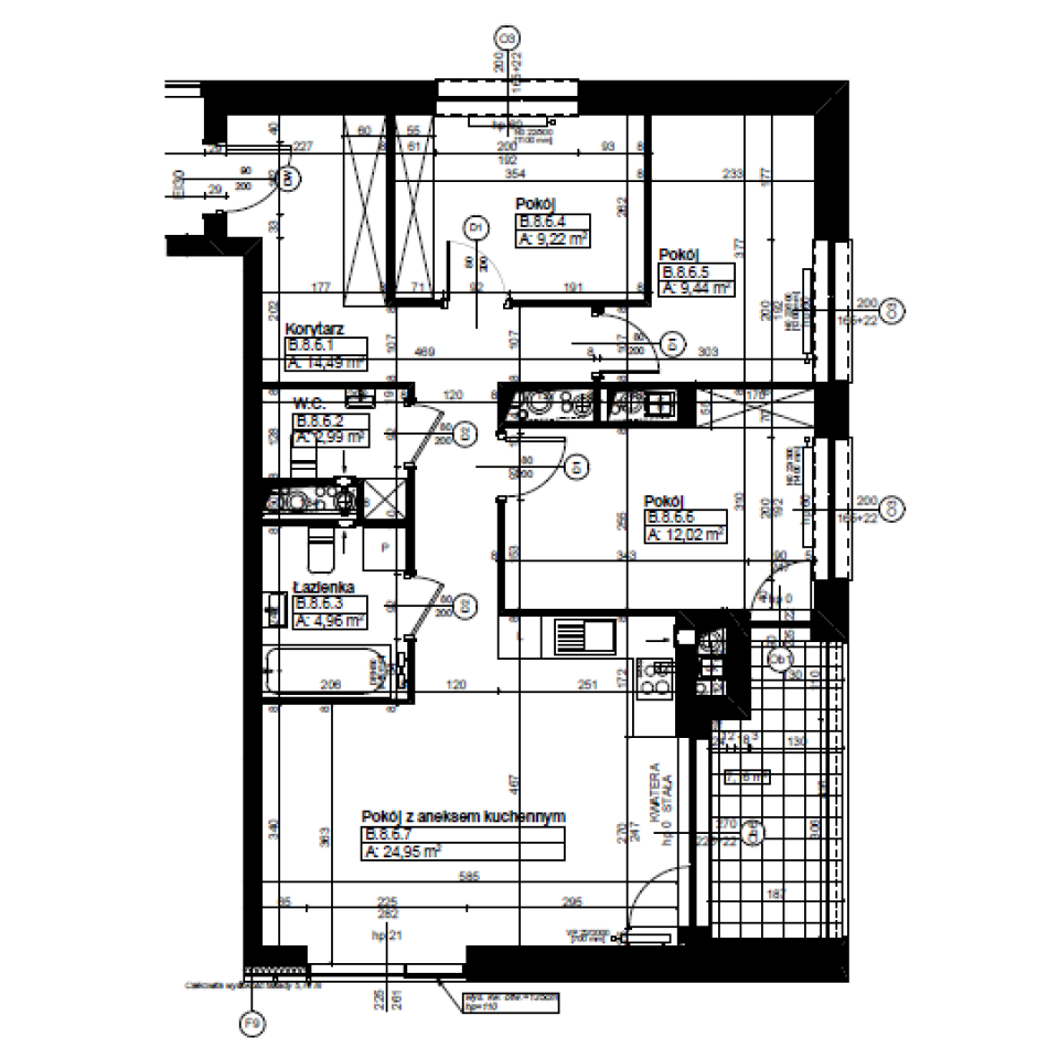
Świerzawska 13

Apartment B.8.6

1,014,910 PLN

13,000 PLN / m2
Floor:
Floor 8
Rooms:
4
Area:
78.07 m2

Additional benefits for the developer i

or fill contact form. Fill a form e-mail: biuro@ataner.pl
Choose offers to add to clipboard