Building Poznań since 1991. facebook youtube
pl

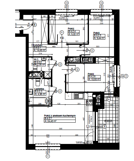
Świerzawska 13

Apartment B.9.2

1,023,264 PLN

13,200 PLN / m2
Floor:
Floor 9
Rooms:
4
Area:
77.52 m2

Additional benefits for the developer i

or fill contact form. Fill a form e-mail: biuro@ataner.pl
Choose offers to add to clipboard