Building Poznań since 1991. facebook youtube
pl

Świerzawska 13

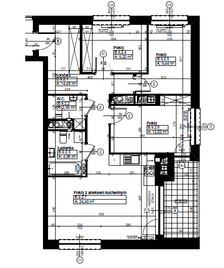
Apartment B.9.3

625,284 PLN

13,200 PLN / m2
Floor:
Floor 9
Rooms:
2
Area:
47.37 m2

Additional benefits for the developer i

or fill contact form. Fill a form e-mail: biuro@ataner.pl
Choose offers to add to clipboard