Building Poznań since 1991. facebook youtube
pl

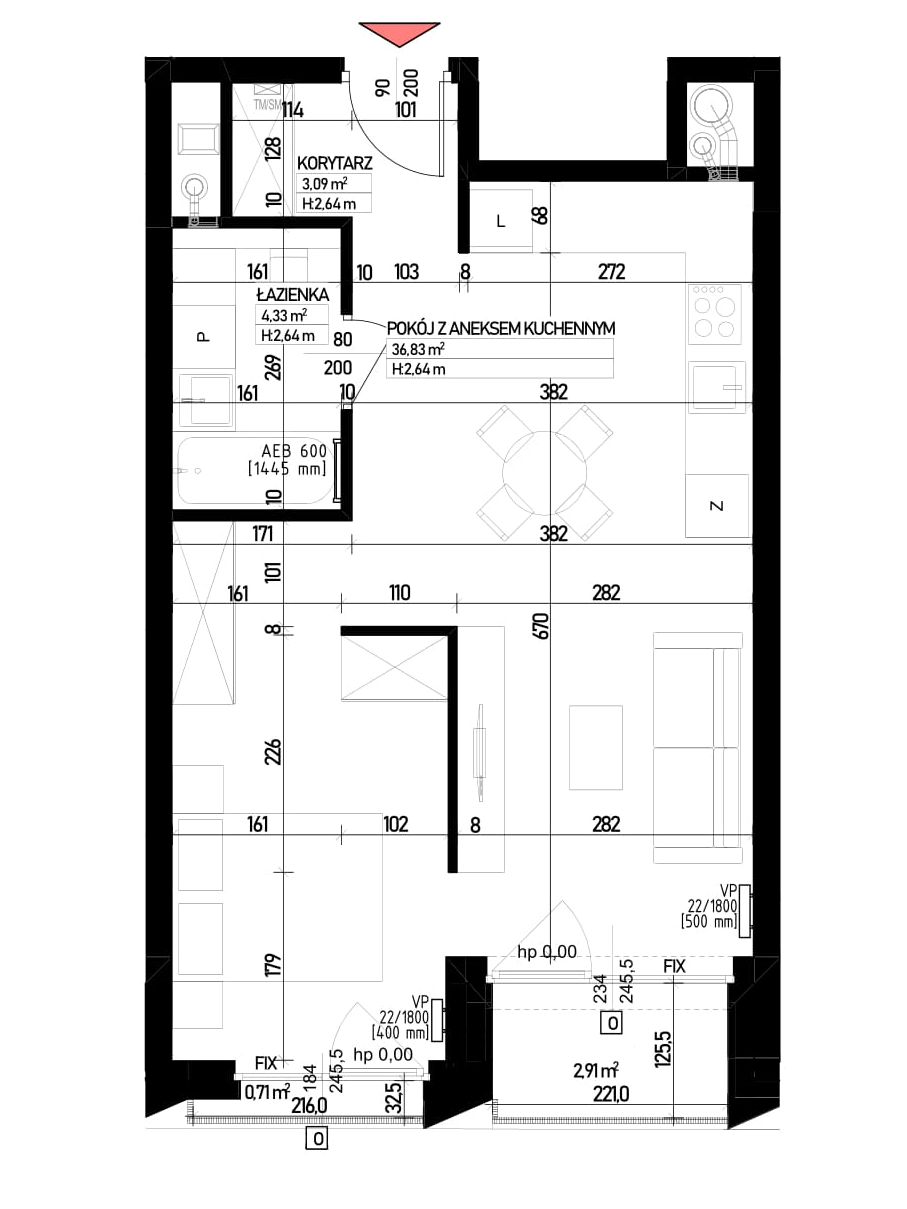
Piekary 18

Apartment A.1.6

765,525 PLN

17,300 PLN / m2
Floor:
Floor 1
Rooms:
1
Area:
44.25 m2

Additional benefits for the developer i

or fill contact form. Fill a form e-mail: biuro@ataner.pl
Choose offers to add to clipboard