Building Poznań since 1991. facebook youtube
pl

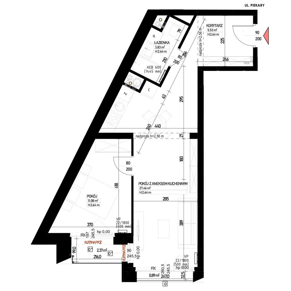
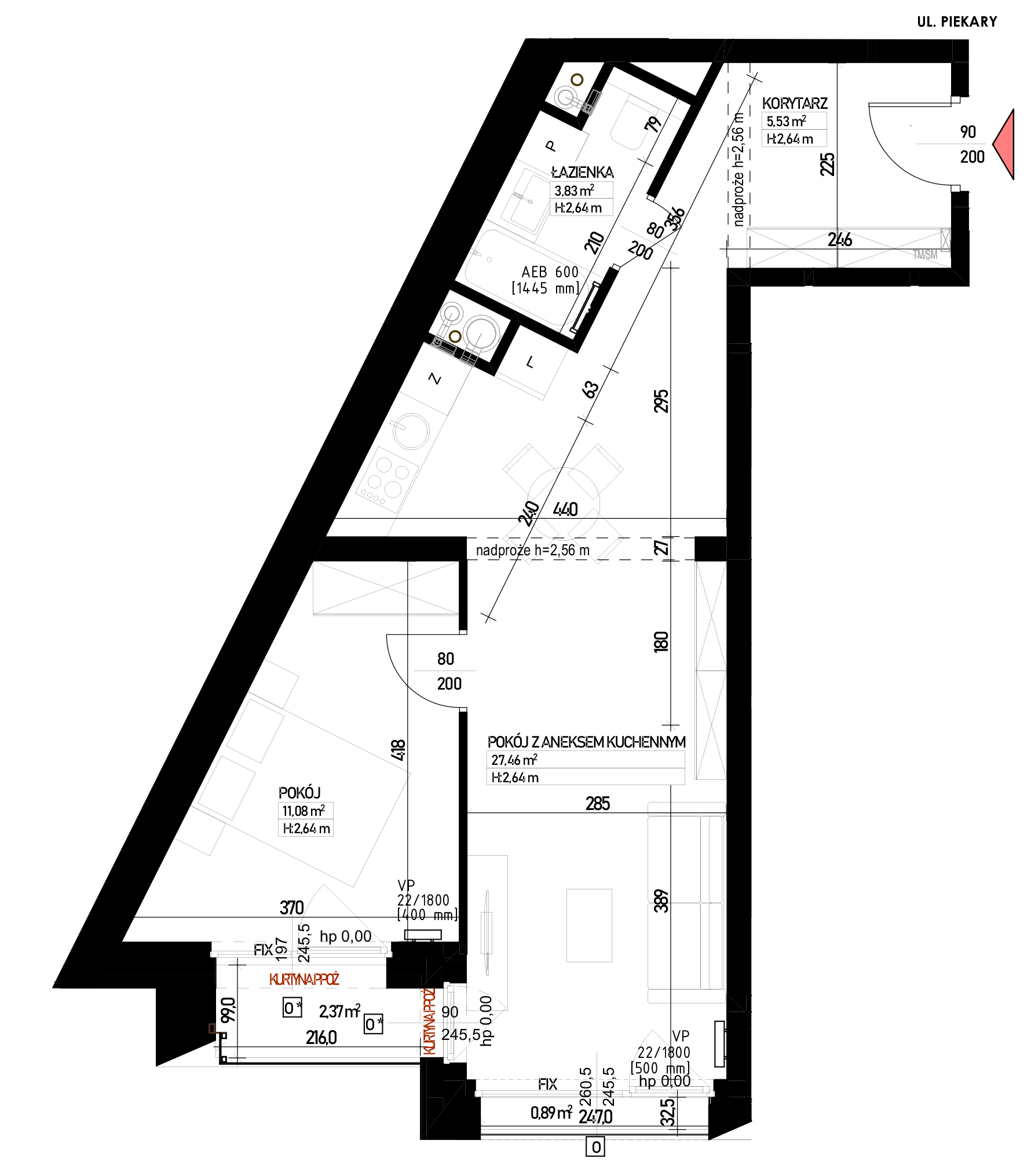
Piekary 18

Apartment B.3.8

876,570 PLN

18,300 PLN / m2
Floor:
Floor 3
Rooms:
2
Area:
47.90 m2

Additional benefits for the developer i

or fill contact form. Fill a form e-mail: biuro@ataner.pl
Choose offers to add to clipboard