Building Poznań since 1991. facebook youtube
pl

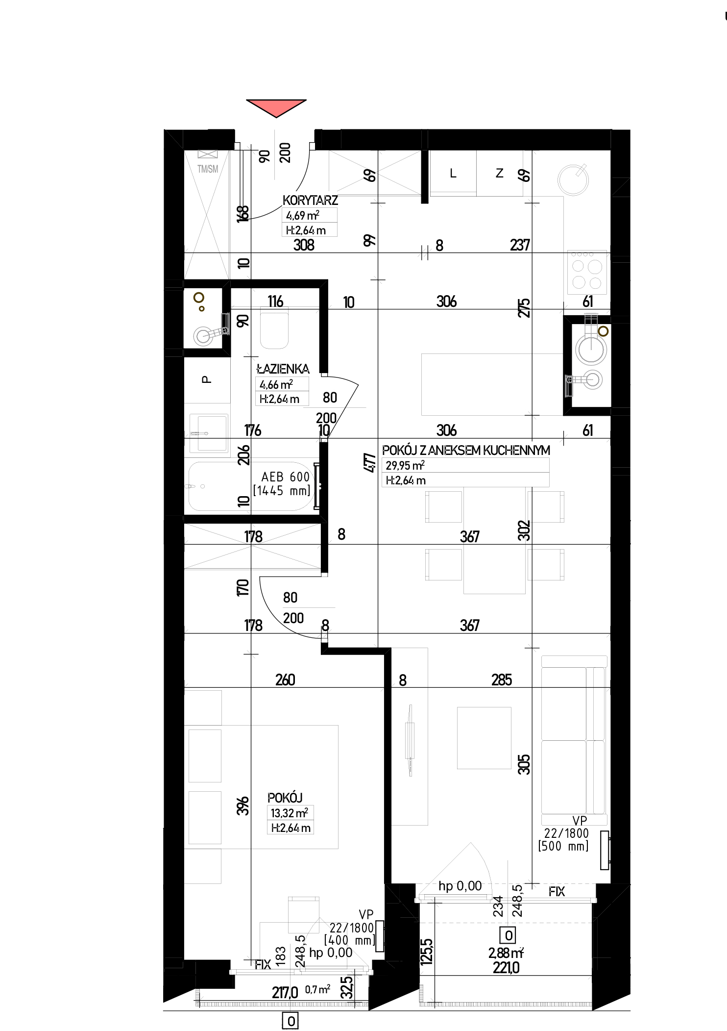
Piekary 18

Apartment B.4.3

1,020,828 PLN

19,400 PLN / m2
Floor:
Floor 4
Rooms:
2
Area:
52.62 m2

Additional benefits for the developer i

or fill contact form. Fill a form e-mail: biuro@ataner.pl
Choose offers to add to clipboard