Building Poznań since 1991. facebook youtube
pl

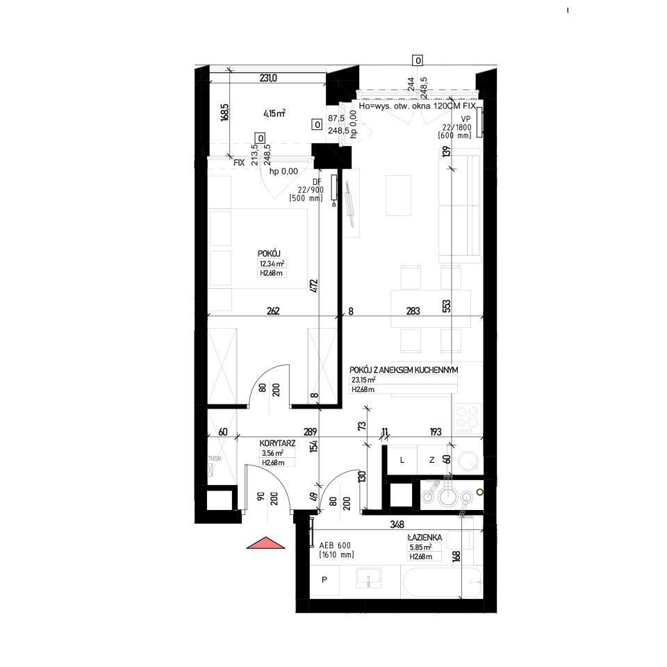
Piekary 18

Apartment B.5.2

911,470 PLN

20,300 PLN / m2
Floor:
Floor 5
Rooms:
2
Area:
44.90 m2

Additional benefits for the developer i

or fill contact form. Fill a form e-mail: biuro@ataner.pl
Choose offers to add to clipboard