Building Poznań since 1991. facebook youtube
pl

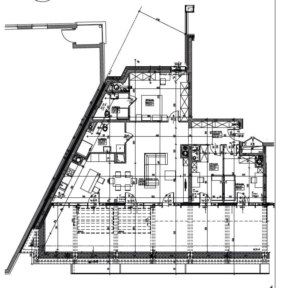
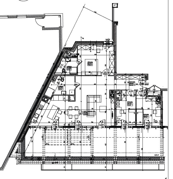
Piekary 18

Apartment B.5.5

2,359,350 PLN

22,500 PLN / m2
Floor:
Floor 5
Rooms:
4
Area:
104.86 m2

Additional benefits for the developer i

or fill contact form. Fill a form e-mail: biuro@ataner.pl
Choose offers to add to clipboard