Building Poznań since 1991. facebook youtube
pl

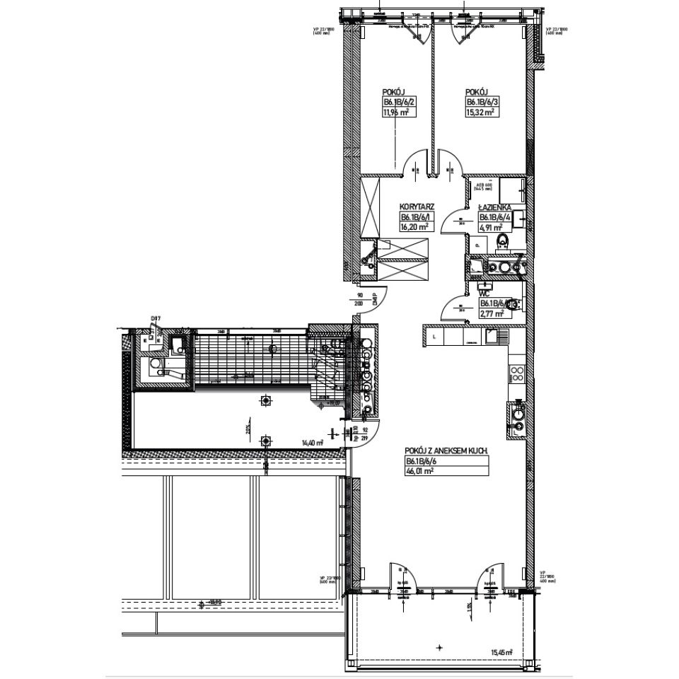
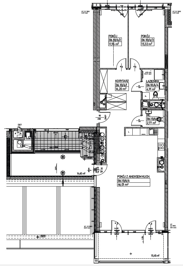
Piekary 18

Apartment B.6.1B

2,137,740 PLN

22,000 PLN / m2
Floor:
Floor 6
Rooms:
3
Area:
97.17 m2

Additional benefits for the developer i

or fill contact form. Fill a form e-mail: biuro@ataner.pl
Choose offers to add to clipboard