Od 35 lat budujemy Poznań. facebook youtube
en

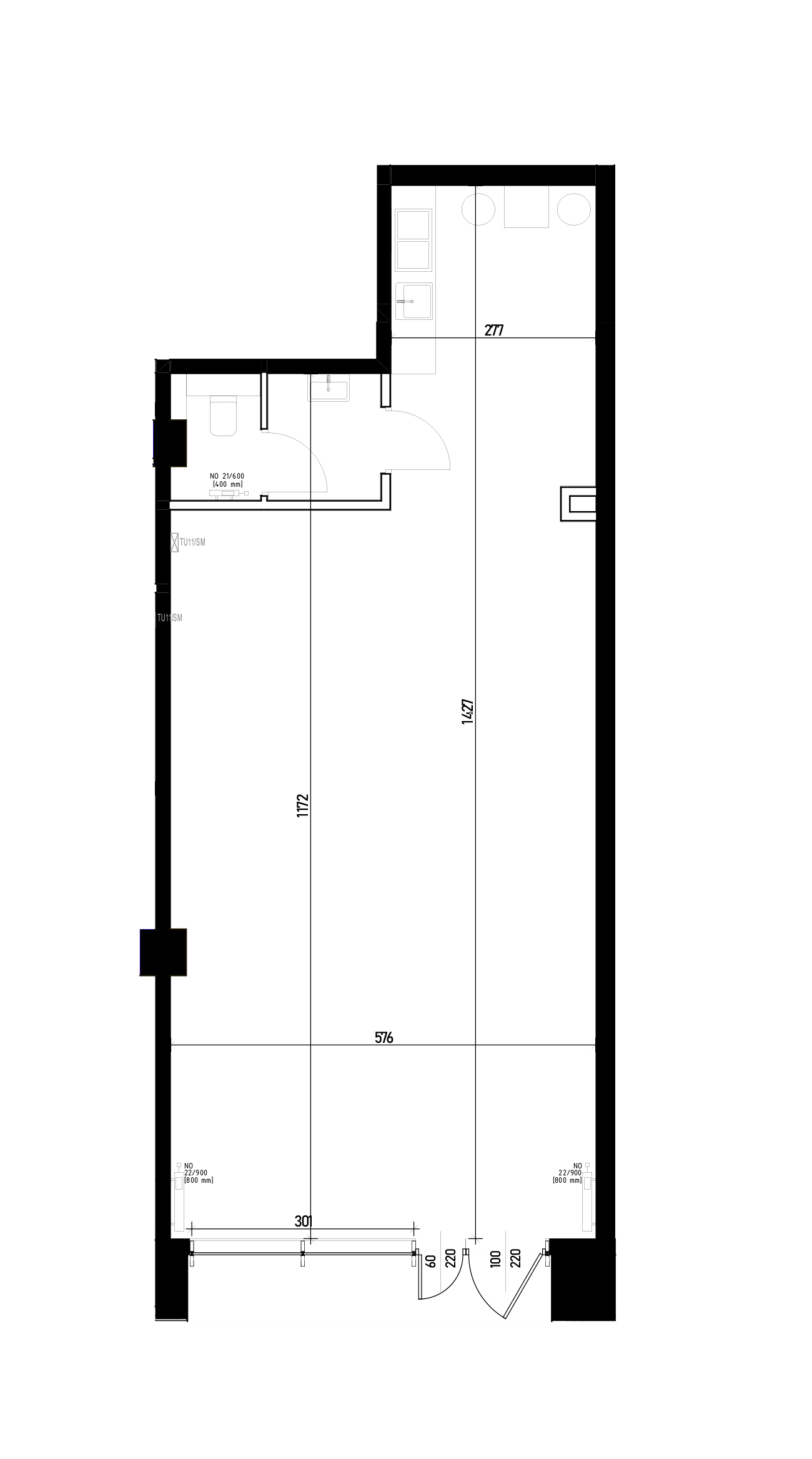
Piekary 18

Lokal U.106

1 579 289,25 zł

21 525 zł / m2
Piętro:
Piętro Parter
Liczba pokoi:
1
Powierzchnia:
73,37  m2

Dodatkowe świadczenia na rzecz dewelopera i

lub wypełnij formularz kontaktowy. Wypełnij formularz e-mail: biuro@ataner.pl
Newsy

MIESZKANIA WYKOŃCZONE POD KLUCZ GOTOWE DO ODBIORU

Zobacz

Wybierz interesujące Cię mieszkania
i zapytaj nas o ofertę