Building Poznań since 1991. facebook youtube
pl

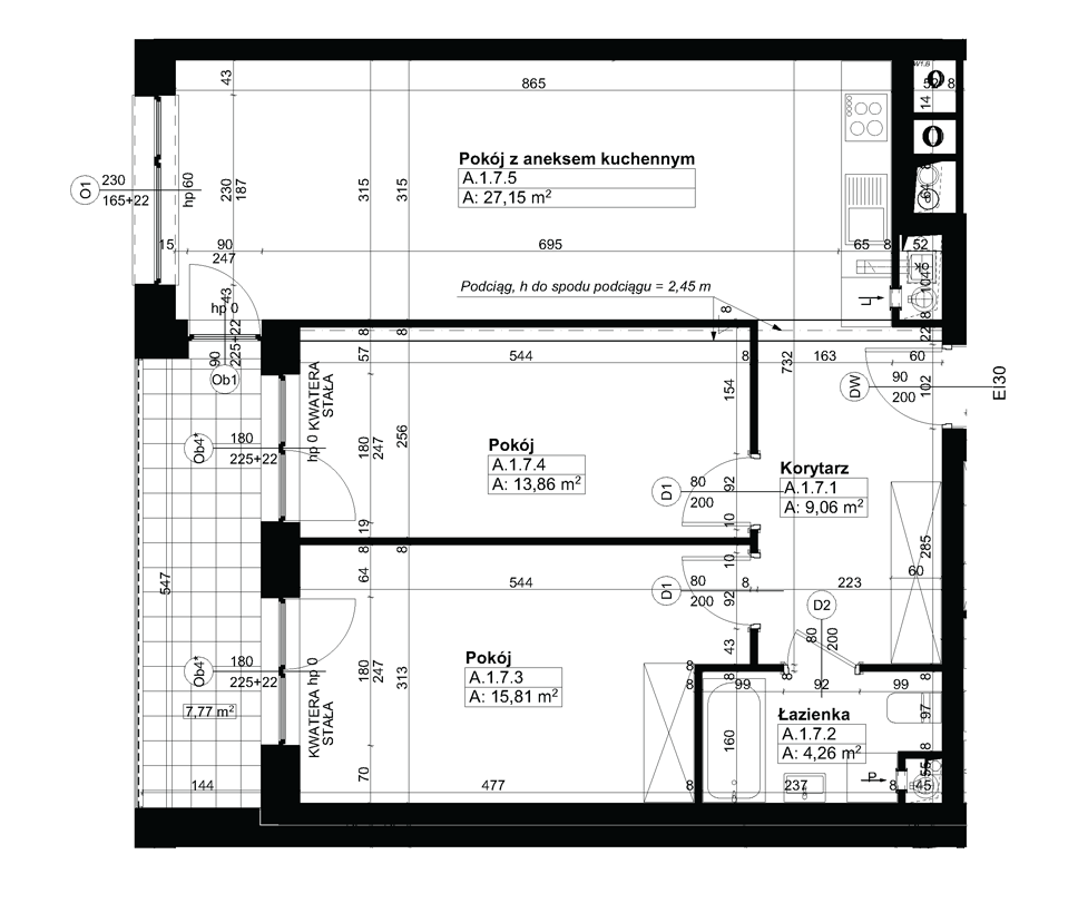
Świerzawska 13

Apartment A.1.7

771,540 PLN

11,000 PLN / m2
Floor:
Floor 1
Rooms:
3
Area:
70.14 m2

Additional benefits for the developer i

or fill contact form. Fill a form e-mail: biuro@ataner.pl
Choose offers to add to clipboard