Building Poznań since 1991. facebook youtube
pl

Świerzawska 13

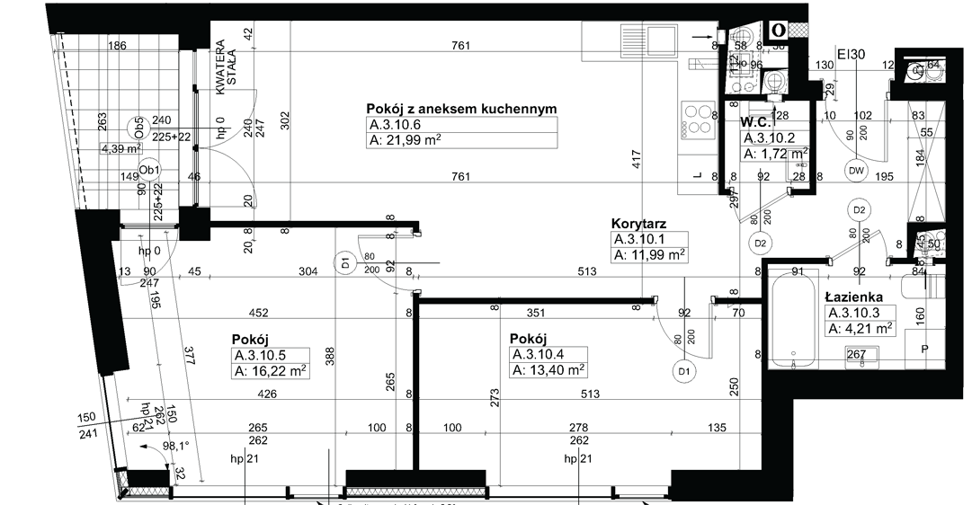
Apartment A.3.10

827,407 PLN

11,900 PLN / m2
Floor:
Floor 3
Rooms:
3
Area:
69.53 m2

Additional benefits for the developer i

or fill contact form. Fill a form e-mail: biuro@ataner.pl
Choose offers to add to clipboard