Building Poznań since 1991. facebook youtube
pl

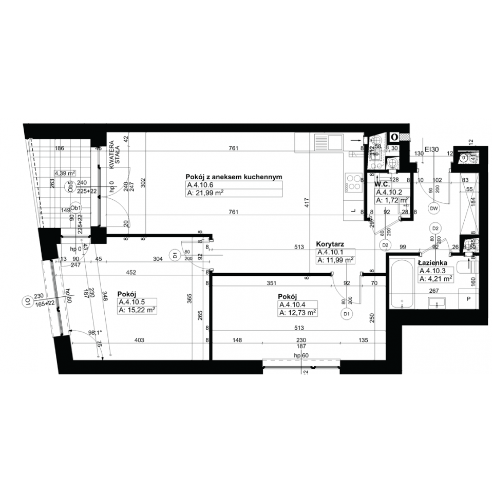
Świerzawska 13

Apartment A.4.10

827,892 PLN

12,200 PLN / m2
Floor:
Floor 4
Rooms:
3
Area:
67.86 m2

Additional benefits for the developer i

or fill contact form. Fill a form e-mail: biuro@ataner.pl
Choose offers to add to clipboard