Building Poznań since 1991. facebook youtube
pl

Świerzawska 13

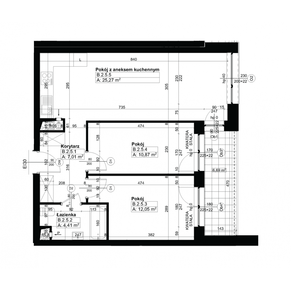
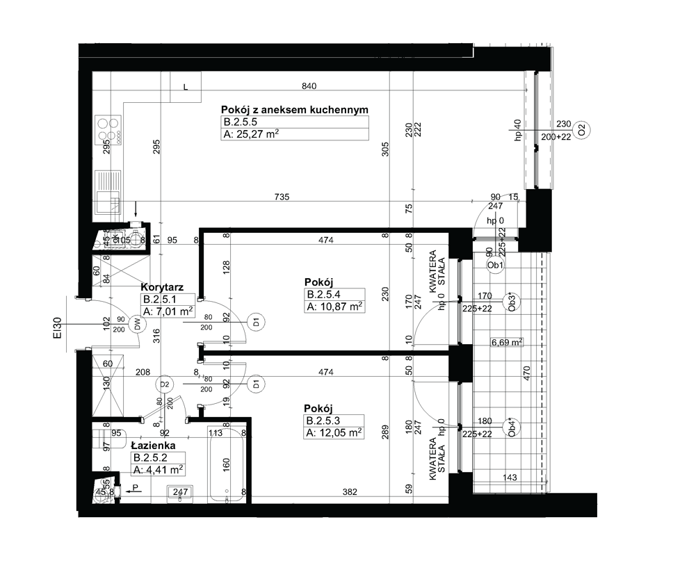
Apartment B.2.5

751,086 PLN

12,600 PLN / m2
Floor:
Floor 2
Rooms:
3
Area:
59.61 m2

Additional benefits for the developer i

or fill contact form. Fill a form e-mail: biuro@ataner.pl
Choose offers to add to clipboard