Building Poznań since 1991. facebook youtube
pl

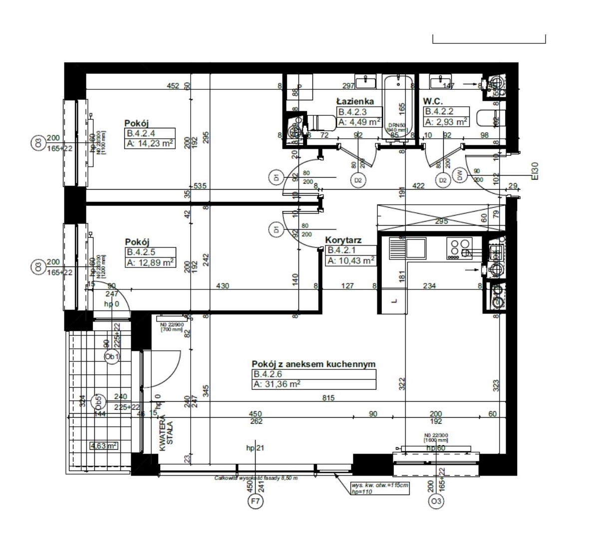
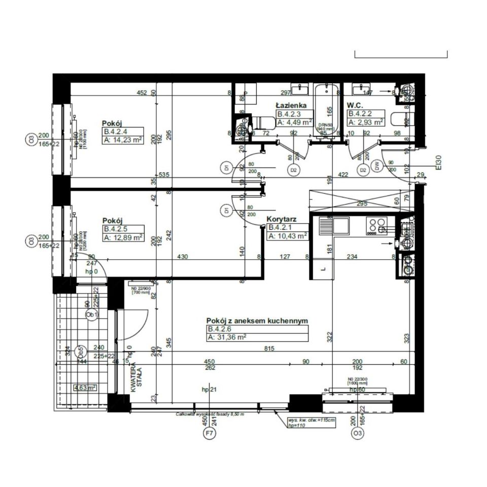
Świerzawska 13

Apartment B.4.2

923,593 PLN

12,100 PLN / m2
Floor:
Floor 4
Rooms:
3
Area:
76.33 m2

Additional benefits for the developer i

or fill contact form. Fill a form e-mail: biuro@ataner.pl
Choose offers to add to clipboard