Building Poznań since 1991. facebook youtube
pl

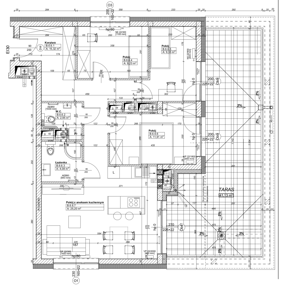
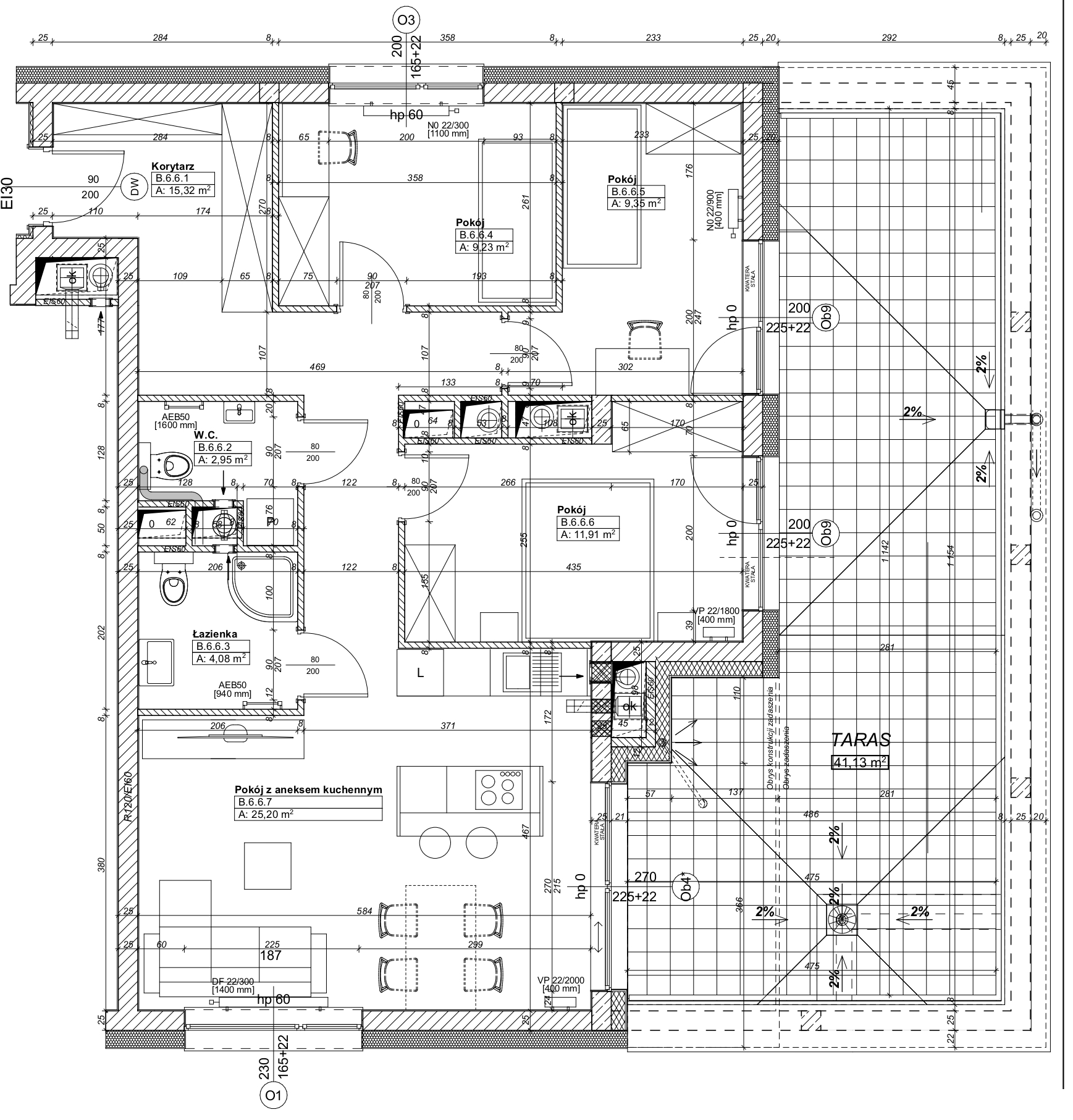
Świerzawska 13

Apartment B.6.6

1,131,580 PLN

14,500 PLN / m2
Floor:
Floor 6
Rooms:
4
Area:
78.04 m2

Additional benefits for the developer i

or fill contact form. Fill a form e-mail: biuro@ataner.pl
Choose offers to add to clipboard