Building Poznań since 1991. facebook youtube
pl

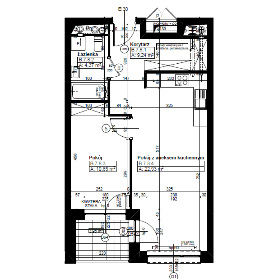
Świerzawska 13

Apartment B.7.8

601,853 PLN

12,700 PLN / m2
Floor:
Floor 7
Rooms:
2
Area:
47.39 m2

Additional benefits for the developer i

or fill contact form. Fill a form e-mail: biuro@ataner.pl
Choose offers to add to clipboard