Building Poznań since 1991. facebook youtube
pl

Świerzawska 13

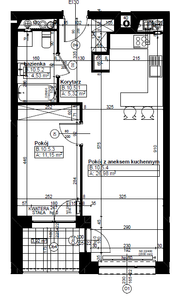
Apartment B.10.5

652,528 PLN

13,600 PLN / m2
Floor:
Floor 10
Rooms:
2
Area:
47.98 m2

Additional benefits for the developer i

or fill contact form. Fill a form e-mail: biuro@ataner.pl
Choose offers to add to clipboard